概要
DKX-1 型电动阀门控制箱用于远距离控制或就地操作电动机容量为10kW一下的电动阀门的打开或关闭。
DKX-2 型电动阀门控制箱除具有DKX-1型的功能外,并可调节阀门任意开度外置。

主要技术性能
海拔高度:≤1000m
环境温度:-60℃~+50℃
相对湿度:环境温度20℃士5℃时,不大于85%
环境介质:没有腐蚀性气体及爆炸危险的场所
安装场所:没有剧烈震动及明显倾斜的场所
控制负载最大功率:10kW
结构
控制箱采用薄钢板弯制而成,分有箱体和箱盖两部分。箱体内布置有控制设备和接线端子板,箱盖上装有控制用带灯按钮和手动开关,在箱体和箱盖契合处垫有橡皮密封条以防止水气及灰尘进入箱内,控制箱为墙挂式安装,箱体的下方有三只密封电缆接头以供引入电缆之用。
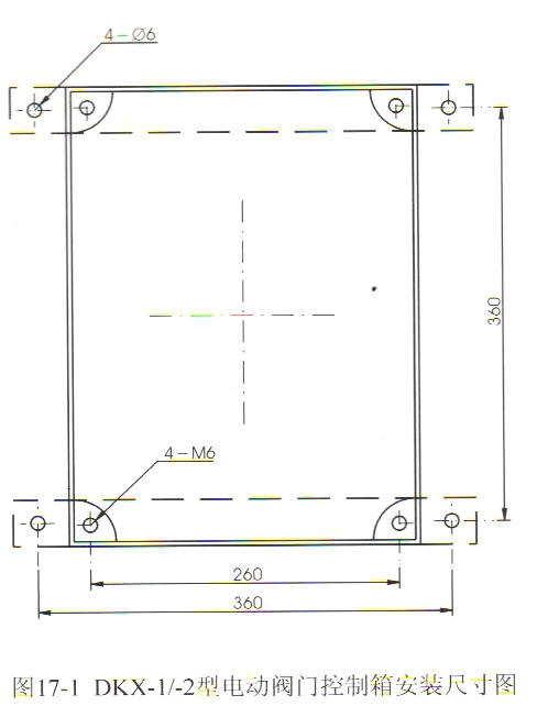
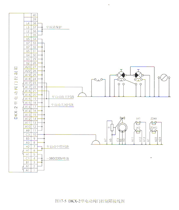
安装与使用外形尺寸图见图17-2、图17-3,安装尺寸图见图17-1,接线图见图17-4、图17-5。
DKX-1/2型电动阀门控制箱在出公司时己经调整,一般情况下用户不需再行调整。但由于包装与运输过程中可能因震动或其它原因使继电器插座震松,线头脱落等问题发生,因此在使用前,检查外观是否有碰坏现象,打开箱盖检査内部元件是否震松和损坏,如无上述情况可按图接线通电半小时,然后检查各点电压是否正常,在没有什么异常情况发生,可合上箱盖,看按钮灯光是否符合。否则不能正式安装。在控制箱及电动阀门安装接线正确无误后,在就地调整终端行程开关同时调整电动门处的滑线电阻,看电流表为满量程,否则调控制箱内电位器使电流表为满量程。
DKX12型电动阀门控制箱的安装有两种方式,一种为直接固定法,将控制箱对上预先做好的固定支架,固定螺钉从支架备孔处拧紧控制箱底角上的4只螺钉孔。另一种方式是将安装板(随控制箱配套)预先安装在控制箱底角螺钉孔上,然后再将控制箱安放在需要固定的地方,将安装板上的安装孔对上固定支架上留孔处进行安装固定。开启箱盖,用镙批将箱锁拉手内螺钉掀下旋动。
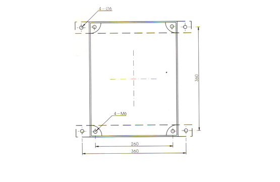
安装尺寸见图17-2。
订货须知:
1、 订货时必须注明型号、规格、数量和电动机的容量、
2、 如用于湿热带或其他用途及特殊规格需作为特殊订货。特殊订货须附接线图及原理图。






